Locus (noun, Latin) : ‘Place, Location’ / / Nexus (noun, Latin) : ‘Connection, Link’
Bodrum / Muğla – 2025
Team
Boğaçhan Dündaralp, Berna Dündaralp, Mesut Seçgin
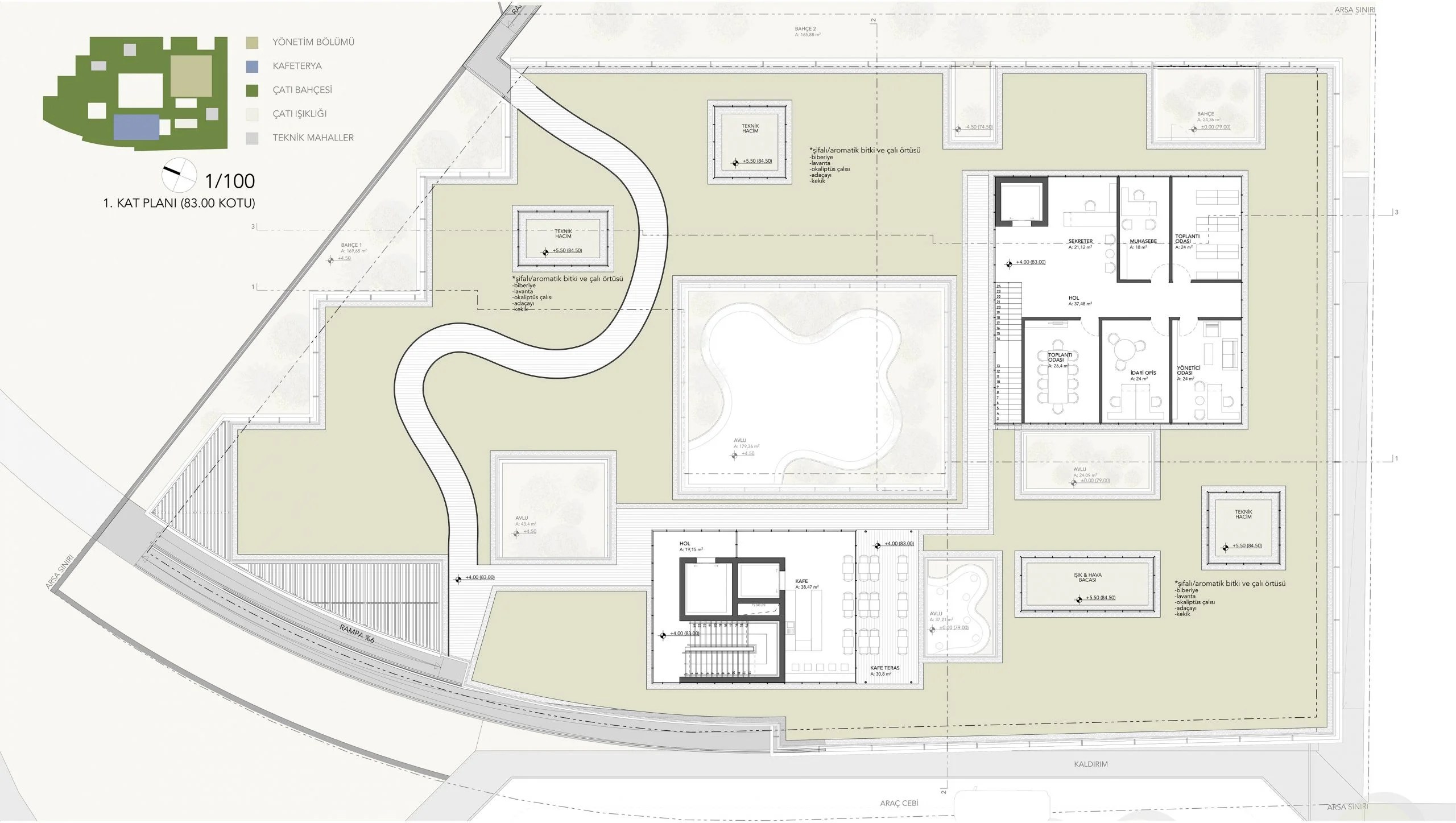
Program
Healthcare Building
Size
3.590 sqm
Client
Bodrum Health Foundation
Engineers and Consultants
Süleyman Akım, Fatma Akım, Ümit Özkan, Arzu Nuhoğlu
Question
In the geography of Bodrum and within the context of ‘PLACE,’ is it possible to create a ‘PLACE-ment’ that truly belongs to its ‘PLACE’ in an area where the natural environment is surrounded by built settlements—one that acknowledges and integrates with nature, greenery, the sea, the landscape, the climate, and the sky, while also connecting with the identity of this geography both publicly and through the concepts of ‘health’ and ‘treatment’ within the program?

